With around 250 locations and 90 serve centers, we are represented in the most important economic regions of the world. The advantages are clear: short paths to our customers, fast response times and a shared language.
For top entry drives, on request for side and bottom entry drives
For glass-lined vessels
Dry-running
Modular and flexible design
Compensation of shaft deflection by patented technology
Independent of direction of rotation
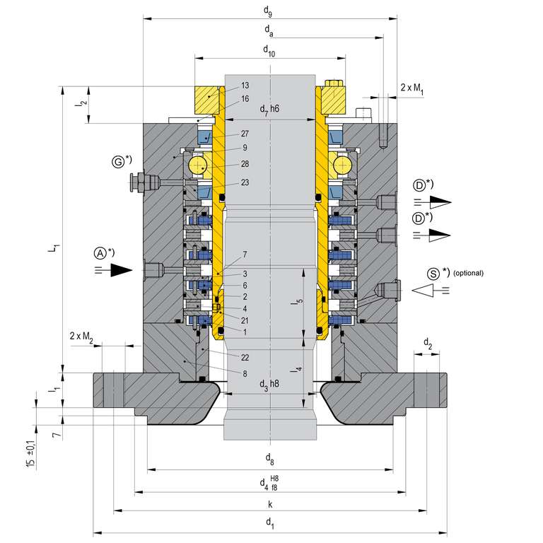
Cartridge unit
Advantages
Available as a ready-to-mount cartridge for quick and easy installation
Ready-to-fit and factory-tested units
Safe and environmentally compatible technology
The glass-lined flange does not have to be replaced - an adaptation is possible
No monitoring necessary
No cost-intensive supply system necessary
Low maintenance requirements
No additional roller bearing necessary, but optionally available
Sealing element made of bright chemically highly resistant PTFE compound
ATEX certification available on request
Customized adjustments possible
Operating range
Shaft diameter (on stock): d1 = 40 ... 125 mm (1.57" ... 4.92")
Special shaft diameters between 25 mm and 200 mm possible (0.98" ... 7.87")
Pressure: p1 = vacuum ... 6 bar (87 PSI)
Temperature: -30 °C ... +200 °C (-22 °F ... +392 °F)
Sliding velocity: vg = 0 ... 2 m/s (0 ... 6 ft/s)
Axial movement: ±3.0 mm
Radial movement: 1.0 mm (up to 3 mm on request)
For applications beyond this range, please inquire.
! It should be noted that the extremal values of each
operating parameter cannot be applied at the same time
because of their interaction.
Materials
Lip sealing element: bright chemically highly resistant PTFE-compound
Secondary seals: FKM (V)
Adapter: AL-Oxid
Metallic parts: 316L /1.4404
Other materials are possible, depending on customer requirements.